Tactical, Air Traffic Control and airfield radars
 
 

Main Radar Home

 

Chain Home Radar System

 
 
 
 

Navaids

Bloodhound

Tactical, ATC and airfield radars

Miscellanea

 
 
 

FAQ (Frequently Asked Questions)

Employment

The Radar Pages

Tactical, Air Traffic Control and airfield radars

Type 82 "Orange Yeoman" radar

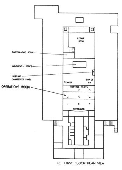
Air Traffic Control Centre
(Left click images to see a larger image - Use your browser's Back button to return)

 



Previous page 


Top of page


Next page

Constructed by Dick Barrett

Email: editor@ban_spam_radarpages.co.uk

(To e-mail me remove "ban_spam_" from my address)

©Copyright 2000 - 2003 Dick Barrett

The right of Dick Barrett to be identified as author of this work has been asserted by him in accordance with the Copyright, Designs and Patents Act 1988.